Wheelchair Accessible Duplex Housing Plan with Main Floor Bedroom D-665

House front color elevation view for D-665 Main floor bedroom, wheelchair accessible, duplex house plan, D-665
thumb
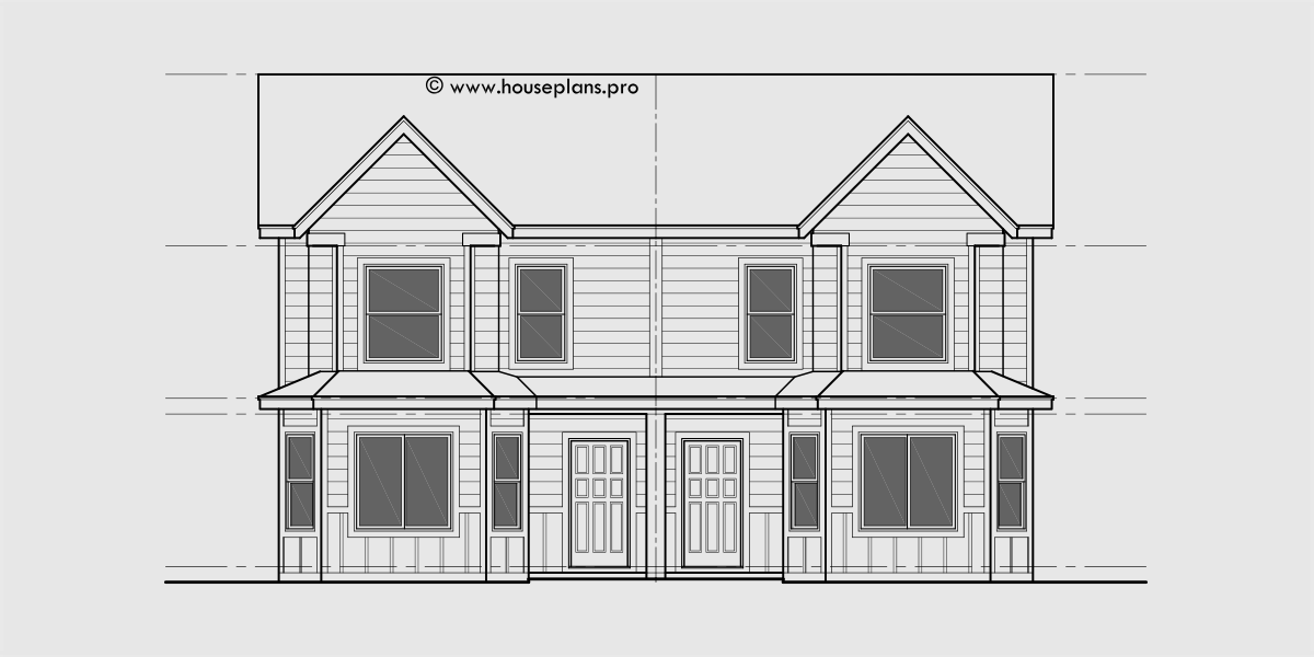
House front drawing elevation view for D-665 Main floor bedroom, wheelchair accessible, duplex house plan, D-665
thumb
House side elevation view for D-665 Main floor bedroom, wheelchair accessible, duplex house plan, D-665
thumb
House rear elevation view for D-665 Main floor bedroom, wheelchair accessible, duplex house plan, D-665
thumb
House rear elevation view for D-665 Main floor bedroom, wheelchair accessible, duplex house plan, D-665
thumb

Main Floor Plan

Main Floor Plan for D-665 Wheelchair Accessible Duplex Housing Plan with Main Floor Bedroom D-665

Upper Floor Plan

Upper Floor Plan for D-665 Wheelchair Accessible Duplex Housing Plan with Main Floor Bedroom D-665

If you like this plan, consider these similar plans

Why buy our plans?

At houseplans.pro your plans come straight from the designers who created them giving us the ability to quickly customize an existing plan to meet your specific needs. So if you have questions about a stock plan or would like to make changes to one of our house plans, our home designers are here to help you.

Since we are the original designers of the plans on houseplans.pro we can match or beat any price of the same exact plan found elsewhere. And we have access to our extensive CAD library of plans not on any web site. So call us to discuss any modifications on a plan and we will check to see if it already exists.

When you buy direct from the source you get access to the knowledge of our designers who know our plans inside and out and are ready to customize plans to your exact specifications. For questions or to order your house plans call 800-379-3828.

Generations of Innovative Home Design Since 1962.


Important Information:

Our plans include the necessary details and drawings needed to obtain a building permit and build. However, depending on where you are building, some of the following may also be needed.

  1. Site plan. (Shows where your house is located on your property.)
  2. Structural engineering. (For earthquake-prone and hurricane risk areas.)
  3. Energy calculations. (Usually done to your states energy code.)
  4. Beam calculations. (Beams sized to accommodate roof loads specific to your region.)
  5. Professional stamp. (Some states require that plans be prepared or reviewed by a state licensed architect or structural engineer.)
  6. Mechanical drawings. (Some areas may require electrical, plumbing, and HVAC drawings.)

Please visit your local building department for a list of the items they require to obtain a building permit.